CB-1258 手柄通风蝶阀

执行标准:CB-1258
公称通径:DN100~250
公称压力:10K,20K
上海7188彩票阀门是生产船用CB-1258手柄通风蝶阀厂家,可提供各种蝶阀规格型号,图片,价格,尺寸,图纸。
产品咨询热线:18717746989
CB-1258 手柄通风蝶阀CB-1258 手柄通风蝶阀
CB-1258手柄通风蝶阀的主要结构特征为对夹式和法兰式三偏心密封形式,阀座密封圈采用弹性密封和软硬兼容的多层次密封两种结构,其密封性能可靠,确保开启时蝶板不接触密封座,消除了密封座不均匀负载,延长了使用寿命,确保可靠的密封性能。具有耐高温、耐磨损、耐腐蚀等优点。广泛应用于石油、化工及船舶等管道上。

手柄通风蝶阀 CB-1258主要构件

主要由阀体、阀杆、蝶板和密封圈组成。阀体呈圆筒形,轴向长度短,内置蝶板。

手柄通风蝶阀 CB-1258采用标准

设计标准:CB-1258 法兰连接尺寸:JIS B2212 JIS B2213 JIS B2214 结构长度:JIS B2002-1987
压力试验:JIS B2003-1987
驱动形式:手柄、蜗轮、气动、电动等

手柄通风蝶阀 CB-1258主要参数

公称通径 DN 830W 830L
2″~36″ 2″~36″
公称压力 PN 10K 20K
试验压力 强度实验 1.5 3.0
密封实验 1.1 2.2
适用介质 水、海水、蒸汽、油品等
适用温度 -29~425℃

手柄通风蝶阀 CB-1258构件材料表

零件名称 材料
阀体 WCB、304、316、316SS、CF8M
阀板 WCB、304、316、316SS、CF8M
阀杆 316、2Cr13、1Cr18Ni9Ti
密封圈 316、氟塑料
填料 柔性石墨、氟塑料

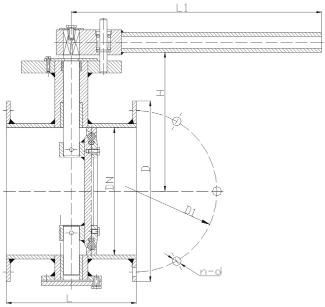
手柄通风蝶阀 CB-1258结构图与尺寸表

手动通风蝶阀

船用通风蝶阀
声明:
本文中所有文字、数据、图片均只适用于参考。需要查看更多的CB-1258 手柄通风蝶阀性能参数、结构尺寸参数、价格等详情,或要求高质量印刷样本,请联系我们。

· 电话:18717746989
· 邮箱:sales@shczvalve.com

7188彩票订货须知:
一、A:产品名称、型号、公称通径B:介质及温度、压力范围C:是否有附件、交货期、特殊要求等以便我们的为您正确选型。  
二、若已经由设计单位选定我公司的阀门型号,请您根据阀门参数直接与我们销售中心订购。  
三、当您使用的场合非常重要或环境比较复杂时,请您提供设计图纸和详细参数,我们的工程师专家会为您审核与分析。我们可以为您提供解决方案,包括设计、定做、成套、运行、服务。我们一直致力于阀门行业领域,为您提供船用阀门知识、服务、技术顾问。  
 
      感谢您访问我们的网站【www.shczvalve.com】,如有任何疑问,您可以致电给我们,我们一定会尽心尽力为您提供服务。本厂提供船用蝶阀船用闸阀船用止回阀船用调节阀、船用减压阀、船用呼吸阀、高速透气阀、船用快关阀船用自闭阀船用旋塞阀船用消防阀船用通海阀、船用防浪阀、船用滤器、船用空气帽船用球阀船用截止阀船用截止止回阀船用阀组、船用截止阀箱、船用针型阀、船用电磁阀、船用隔膜阀、船用压力表阀等各类船用阀门,不锈钢阀门。