|
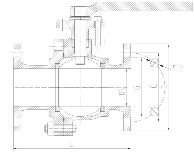
公称通径NPS |
单位 |
L |
D |
T |
G |
C |
n-φd |
W |
H |
|
in |
mm |
|
1/2" |
15 |
mm |
108 |
89 |
12 |
35 |
60.5 |
4-15 |
115 |
72 |
|
in |
4.25 |
3.5 |
0.47 |
1.38 |
2.38 |
4-0.59 |
4.53 |
28.3 |
|
3/4" |
20 |
mm |
117 |
98 |
12 |
43 |
70 |
4-15 |
115 |
76 |
|
in |
4.61 |
3.86 |
0.47 |
1.69 |
2.76 |
4-0.59 |
4.53 |
29.9 |
|
1" |
25 |
mm |
127 |
108 |
12 |
51 |
79.5 |
4-15 |
150 |
92 |
|
in |
5 |
4.25 |
0.47 |
2 |
3.13 |
4-0.59 |
5.9 |
3.62 |
|
11/2" |
40 |
mm |
165 |
127 |
14.3 |
73 |
98.5 |
4-16 |
200 |
123 |
|
in |
6.5 |
5 |
0.56 |
2.88 |
3.88 |
4-0.62 |
7.87 |
4.84 |
|
2" |
50 |
mm |
178 |
152 |
15.9 |
92 |
120.5 |
4-19 |
200 |
132 |
|
in |
7 |
6.00 |
0.625 |
3.62 |
4.75 |
4-0.75 |
7.87 |
5.20 |
|
21/2" |
65 |
mm |
190 |
178 |
17.5 |
105 |
139.5 |
4-19 |
320 |
164 |
|
in |
7.5 |
7 |
0.69 |
4.12 |
5.5. |
4-0.75 |
12.6 |
6.45 |
|
3" |
80 |
mm |
203 |
190 |
19.1 |
127 |
152.4 |
4-19 |
320 |
173 |
|
in |
8 |
7.50 |
0.75 |
5 |
6 |
4-0.75 |
12.6 |
6.8 |
|
4" |
100 |
mm |
229 |
229 |
23.9 |
157 |
190.5 |
8-19 |
450 |
210 |
|
in |
9 |
9 |
0.94 |
6.19 |
7.5 |
8-0.75 |
17.72 |
8.26 |
|
6" |
150 |
mm |
394 |
279 |
26 |
216 |
241.5 |
8-22 |
8000 |
288 |
|
in |
15.5 |
10.98 |
1.02 |
8.5 |
9.50 |
8-0.88 |
31.5 |
1.34 |
|
8" |
200 |
mm |
457 |
343 |
29 |
270 |
298.5 |
8-22 |
1120 |
374 |
|
in |
18.00 |
13.50 |
1.12 |
10.62 |
11.75 |
8-0.88 |
44.10 |
14.72 |
|
10" |
250 |
mm |
533 |
406 |
31 |
324 |
362 |
12-25 |
1420 |
366 |
|
in |
20.98 |
16 |
1.2 |
12.75 |
14.75 |
12-1 |
55.12 |
14.40 |
|
12" |
300 |
mm |
610 |
483 |
32 |
381 |
432 |
12-25 |
1420 |
412 |
|
in |
24 |
19 |
1.26 |
15 |
17 |
12-1 |
55.12 |
16.22 |
|
公称通径NPS |
单位 |
L |
D |
T |
G |
C |
n-φd |
W |
H |
|
in |
mm |
|
1/2" |
15 |
mm |
140 |
95 |
15 |
35 |
66.5 |
4-15 |
115 |
72 |
|
in |
5.51 |
3.74 |
0.59 |
1.38 |
2.62 |
4-0.59 |
4.53 |
28.3 |
|
3/4" |
20 |
mm |
152 |
117 |
16 |
43 |
82.5 |
4-19 |
115 |
76 |
|
in |
5.98 |
4.61 |
0.62 |
1.69 |
3.25 |
4-0.75 |
4.53 |
29.9 |
|
1" |
25 |
mm |
165 |
124 |
18 |
51 |
89 |
4-19 |
150 |
92 |
|
in |
6.5 |
4.9 |
0.71 |
2 |
3.5 |
4-0.75 |
5.9 |
3.62 |
|
11/2" |
40 |
mm |
190 |
156 |
20.7 |
73 |
114.5 |
4-22 |
200 |
123 |
|
in |
7.5 |
6.12 |
0.81 |
2.88 |
4.51 |
4-0.88 |
7.87 |
4.84 |
|
2" |
50 |
mm |
216 |
165 |
22.3 |
92 |
127 |
8-19 |
200 |
132 |
|
in |
8.5 |
6.5 |
0.88 |
3.62 |
5 |
8-0.75 |
7.87 |
5.20 |
|
21/2" |
65 |
mm |
241 |
190 |
25.4 |
105 |
149 |
8-22 |
320 |
164 |
|
in |
9.5 |
7.5 |
1 |
4.12 |
5.87 |
8-0.88 |
12.6 |
6.45 |
|
3" |
80 |
mm |
283 |
210 |
28.5 |
127 |
168.5 |
8-22 |
320 |
173 |
|
in |
11.25 |
8.25 |
1012 |
5 |
6.62 |
8-0.88 |
12.6 |
6.8 |
|
4" |
100 |
mm |
305 |
254 |
31.8 |
157 |
200 |
8-22 |
450 |
210 |
|
in |
12 |
10 |
1.25 |
6.19 |
7.88 |
8-0.88 |
17.72 |
8.26 |
|
6" |
150 |
mm |
403 |
318 |
36.6 |
216 |
270 |
12-22 |
1120 |
336 |
|
in |
15.875 |
12.5 |
1.44 |
8.5 |
10.62 |
12-0.88 |
44.10 |
13.23 |
|
8" |
200 |
mm |
502 |
381 |
42 |
270 |
330 |
12-25 |
1420 |
385 |
|
in |
19.76 |
15 |
16.5 |
10.62 |
12.99 |
12-1 |
55.12 |
15.16 |
|
10" |
250 |
mm |
568 |
444 |
48 |
324 |
387.5 |
16-29 |
1420 |
370 |
|
in |
22.36 |
17.50 |
1.89 |
12.75 |
15.25 |
16-1.12 |
55.12 |
14.56 |
声明:
本文中所有文字、数据、图片均只适用于参考。需要查看更多的船用美标青铜法兰球阀性能参数、结构尺寸参数、价格等详情,或要求高质量印刷样本,请联系我们。
· 电话:18717746989
· 邮箱:sales@shczvalve.com
7188彩票订货须知:(国家标准):
一、A:产品名称、型号、公称通径B:介质及温度、压力范围C:是否有附件、交货期、特殊要求等以便我们的为您正确选型。
二、若已经由设计单位选定我公司的阀门型号,请您根据阀门参数直接与我们销售中心订购。
三、当您使用的场合非常重要或环境比较复杂时,请您提供设计图纸和详细参数,我们的工程师专家会为您审核与分析。我们可以为您提供专业的解决方案,包括设计、定做、成套、运行、服务。我们一直致力于阀门行业领域的领导者,为您提供最新的船用阀门知识、最好的服务、最佳的技术顾问。
感谢您访问我们的网站【http://www.eljardiarfa.com】,如有任何疑问,您可以致电给我们,我们一定会尽心尽力为您提供优质的服务。本厂专业提供船用蝶阀、船用闸阀、船用止回阀、船用调节阀、船用减压阀、船用呼吸阀、高速透气阀、船用快关阀、船用自闭阀、船用旋塞阀、船用消防阀、船用通海阀、船用防浪阀、船用滤器、船用空气帽、船用球阀、船用截止阀、船用截止止回阀、船用阀组、船用截止阀箱、船用针型阀、船用电磁阀、船用隔膜阀、船用压力表阀等各类船用阀门,不锈钢阀门。
|